服務熱線:何永斌 聯系方式:13267179661
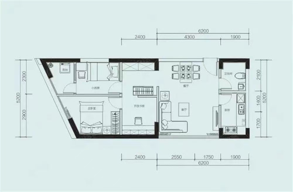
房屋戶型:1室 、2室 、3室 、
住宅類型:精裝修
區域:深圳市寶安區前進路玉莊邊交匯處
最新開盤:2015.06.10
立即咨詢
24小時咨詢熱線:13267179661








服務熱線:何永斌 聯系方式:13267179661
