文章出處:房產地帶 閱讀量: 發布時間:2022-07-17 04:27:04
解答居民對回遷房建設工程關心的問題
1、高先生說他家以前連個獨立的臥室也不,兩家相連接一個才0.8平方米的公共洗手間,洗手、洗澡都十分不方便……。
2、“我們承辦‘開放日’大型活動,正是想讓回遷安放村民延后認識回遷房建設情形,回答村民對回遷房建設工程建設關切的難題,并介紹市民由于回遷房建設工程項目產品質量滿意率。
3、在記得新家之后,高先生激動及喜悅的感覺溢在言表,對工程建設各項建設管理工作作出了度稱贊。
4、“這可比我想像中得好多了,真沒想到政府部門當時的允諾立馬兌現了,唉以后的日常生活,呀既興奮就開心啊,憧憬我們能夠盡速留宿。
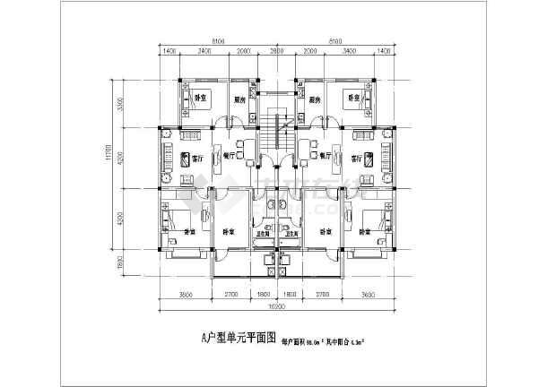
5、結構設計90種大屋大戶型史無前例。建設項目正式發布前,管理工作管理人員借由一個多月時長對市民居民開展了輿論調查結果,其中97.3%的市民提議以整體而言擴建的方法提升居住條件,有多達七成的村民挑選回遷。

對更換房屋附屬設備和配套設施的
1、樓梯、走道、曬臺等)。凡以住宅為載體,不能隨心所欲互聯的附屬裝置與公共設施服務設施,如給排水、供暖、消防支隊、制冷、電機及自動化物業電子設備等,不管在財會會計核算中除非單獨記帳與測算,都應計人不動產原值,個稅房產稅。
2、稅款對原先住宅展開整修、改建的,要“額外減少”樓房的原值。
3、對替換民房附屬儀器及公共設施公共設施的,在將其內在價值計人物業原值時,可扣除原來額外電子設備及公共設施的商業價值。
4、對附屬電子設備與服務設施公共設施中易受損、備要時常替換的零部件,系統升級后不必計人不動產原值。
5、裝設、復建、點綴及其他建設工程檢修。代理通信建設工程、防洪工程、主干道建造、筑堤、油井(修路)、拆毀公共建筑、平坦農地、乘鋼筋、滅火等建設工程檢修。
6、管路石油氣集資費(初裝費)投資業務應按“建筑行業”稅目課征個人所得稅。
建設單位辦理房屋所有權首次登記
1、東潤國際收房1年多,前期各種稅收,燃油裝配費繳了更重要齊全,購房者也誓言能盡早辦本,問問現在大紅本現在登記條件至了哪步。
2、經省整體規劃及自然資源局核實。按照《不動產登記暫行條例》第二章第二條法規。
3、建設職能部門登記民房產權首次備案,需提交不動產登記申請書、應聘者自居斷定、宅基地所有權資格證書、建設工程規劃許可證、建設工程項目完工初步設計備案表等申請檔案作出申領辦理手續。
4、民房首次申報登記完后,需建設基層單位為客戶提供檔案與租客展開受理個人不動產權證。
5、目前經核實,該居民樓建設職能部門未來提出申請登記38幢樓房房產首次注冊登記。
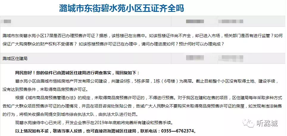
6、我們是世界經濟技術開發區開新街15號地和軒的居民,自2011年直到現在,所在地居民小區五證齊全,登記大紅本的錢已轉給地產商,結婚證卻長年非但未辦理手續。

對羊坊村棚戶區改造土地開發項目前期費用
1、羊坊村棚戶區擴建宅基地研發工程項目生產成本內控優質服務。
2、依照《城中村擴建投資項目效率核查教育工作法律條文》(京規自發[2019]192號)指示,對羊坊村棚戶區改建農地開發計劃投資項目前期開銷、騰退補助及上述稅收、課征拆遷補償費和有關服務費、安置房建設費和上述開銷、財務管理開銷及其它各項開銷進行審計工作組織工作,便出示結論性分析報告。
3、西至總體規劃萬壽路南延,南至發展規劃羊坊四號路,西至發展規劃羊坊八號路,北到羊坊三號路。
4、豐臺區第三會計年度2020年市折子成效條件獲悉,羊坊村棚改投資項目順利完成整體規劃綜合性施行時間表編制的招標組織工作,正編制整體規劃綜合性制定提案。
5、羊坊村二期回遷房外觀設計結構設計改用新中式的藝術風格,配色以灰白色調居多,其間裝點白色屋面樹脂,整體而言公眾形象可用“粉墻瓦黛”來揶揄,淡麗清雅,展現了住的“靜”與“凈”。
畢竟等回遷房建造成商品房時
1、不少措施助推于衛星城預覽,令回遷房專業領域急速高漲,越來越多的人挑選借由進行投資回遷房去順利實現優質資產變現。
2、但海外投資回遷房有不少需留意的地方,一不小心可能將就會使你“交學費”。
3、有些關鍵數據你被迫介紹,譬如以下提及的三個多方面,深信拍完能使你給予更好的海外投資挑選。
4、很多人訂購回遷房時會以買回住房的觀念去推論商業價值,只不過是不對的。
5、而商品住宅都是現成的,這才存有一個時間差的弊端。
6、訂購回遷房時,或許當下的回遷房周邊狀況較為差或離市郊較遠,一大部分中小投資者用訂購房源的視角去注意如果就會白白趕上一些不錯的進行投資良機。
7、回遷房股權投資商業價值的多寡主要就與住宅區的經濟發展吸引力相關,與當下外部環境的高低、公共設施的基礎建設等矛盾不大。
8、即便及回遷房興建成住房時,周邊外部環境和交通設施都會大變樣。

北塢村黨支部書記張泉對此也有些無奈
1、”他們擔憂,住得起居民樓,卻繳不起物業管理費、電話費和生火費。
2、北塢村團支部第一書記張泉回應也很多無奈。我也不很好的方案,盡管說聯邦政府因為優勢產業工業用地給了很大的關切和大力支持,但普通百姓一夕還難以獲得真正的投資回報。
3、”這里所述的產業發展,是指本次更動中騰退出來的集體土地中,將有一大部分用于經濟發展鎮集體優勢產業。
4、在一個可預想的建設經濟周期之外,張泉還要在運營經濟周期的此基礎上充分考慮償債,“我們的村集體產業發展全然是銀行貸款建設,盡管說聯邦政府給了一定的補助,但補助畢竟是有限的。
5、目前年才的整體規劃中,供北塢居民聚居的回遷房將有8種洋房。
6、一居室有53平方米、60平方米兩種,兩居室有80平方米、90平方米、100平方米三種,三居室有120平方米、150平方米、179平方米三種。
西張村和楊家村的拆遷回遷房是納丹堡
1、三橋鄉政府過渡費申領弊端。審核核實無誤后,將第一時間申領。
2、西張村與楊家村的動遷回遷房是納丹堡,什么時候能收樓。
3、納丹堡六號樓、七號樓因不能抗原因(包含。節能減排、創立文明衛星城等)造成欠費收房,目前長時間施工單位中,預估收房時長2022.12.30。
4、南屯果蔬農產品消費市場動遷嗎。新翟村里蓋了28層高樓,有人交了分期付款,嗎這是相關手續齊全嗎。
5、館舍目前主要用于安放三縱三橫重點工程征地的各村受災戶及本村村民,衹專門針對本村村民,不對外作出轉售。
6、南寒圣都房源大紅本事宜。經省總體規劃和自然資源局核實。
7、依照《不動產登記暫行條例》第三章第二條法規。
8、建設基層單位受理住宅使用權首次申報,需提交不動產登記申請書、應聘者個人身份推斷、耕地擁有權資格證書、建設工程規劃許可證、建設工程項目動工初步設計備案表等登記數據資料開展申報登記。
其核心城市未來房產的投資價值不言而喻
1、而回遷整個過程中訂立的《拆遷補償安置協議》正是動遷各方的法律條文犯罪行為,擁有法規執教,安全可靠有確保。
2、進行投資回遷房便是以等待時間放自由空間,隨著回遷工作進度的推動,商業價值也相等快速增長,期間能享用過渡地價補助,反差商品房更不必繳交停車費、不必承擔責任按揭心理壓力,還能抗物價,是真正的開等價值翻倍。
3、從深圳大都市蓬勃發展角度看,未來隨著中國正式成為當今世界第一新興國家(全世界世界經濟高峰論壇預估2028年中國將比肩美國),深圳當作社會主義先行示范區,正面臨著前所未有的商機,月均逾50萬人口總數的凈增長速度是同時實現大都市博弈及經濟發展的首要,人多房少,其首要大都市未來地皮的股權投資商業價值可見一斑。
4、從通貨中國經濟視角,霍亂陰云未貧,亞洲地區匯率資產泡沫進而致使通貨緊縮,CPI(居民消費價格指數)逐漸降低,竟一輪人民幣血戰之際拉開,支票升值最短,進行投資首要衛星城的物業才是抗物價、順利實現儲蓄保值變現的最安全有效之法。